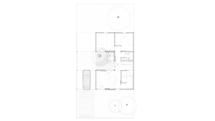
La unidad está planteada a partir de cinco módulos estructurados alrededor de un patio central, que funciona como articulación y extensión de los espacios de uso.
Un modulo de servicio (baño y cocina y circulación) y dos bloques de uso flexible, de dos módulos cada uno, posibilitan variar las actividades sociales y/o privadas y abren una amplia gama de posibilidades en la distribución de las áreas.