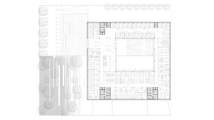
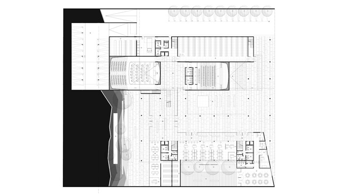
Físicamente la construcción del frente urbano de la nueva Sede Administrativa de la Municipalidad de Tandil, consolida el tejido urbano histórico de la ciudad, por un lado y por un otro, simbólicamente, la proyección de una plaza cívica hacia el interior del proyecto establece un nuevo punto de referencia en la vida política y cívica de la ciudad.
El edificio esta compuesto por dos cuerpos, el primero, un basamento permeable desde el cual es posible acceder a la plaza, responde a la escala humana que demanda el espacio público. El segundo, un cuerpo elevado sobre el basamento, define y contiene la plaza interior y otorga la escala urbana que demanda el carácter del edificio.
CCFGM con Carlos Dinapoli y Alina Venturini
CCFGM con Carlos Dinapoli y Alina Venturini
.
Tandil, Argentina, 2010
3º Premio