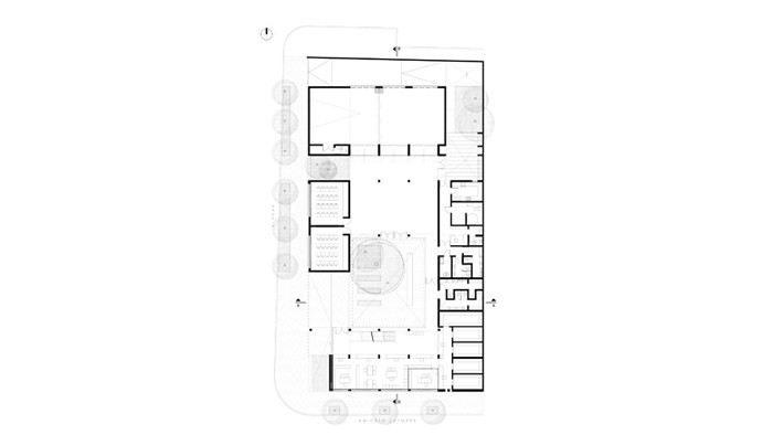
El proyecto para el Colegio de Médicos de Salta, retoma dos elementos característicos de la arquitectura tradicional de la región como lo son el patio y la galería.
El esquema se organiza a partir de tres patios conectados entre sí, que estructuran y articulan al edificio y sus funciones, y que a diferencia de la idea de patio como espacio privado, se presentan como espacios abiertos y de carácter semi público.
En este esquema el patio central se plantea como un hall al aire libre desde el cual es posible acceder a las dos alas del edificio, la de carácter administrativo que alberga oficinas y archivo o la de carácter público en donde se ubica el auditorio y las salas de comisiones. A estos dos patios, se le suma un tercer patio de carácter privado, en donde se ubican los servicios.
CCFGM
CCFGM
Federico Cairoli
Salta, Argentina, 2012
1º Premio