El edificio para la Universidad de la Provincia del Chubut, junto con otros proyectos a desarrollar en el sector, forman parte de una estrategia urbana que busca desarrollar y consolidar un nuevo frente urbano hacia el río, redefiniendo la relación existente entre la ciudad de Rawson y el río Chubut.
El edificio define una plaza pública hacia la ciudad en continuidad al nuevo perfil urbano y configura hacia el río, una estructura urbana abierta.
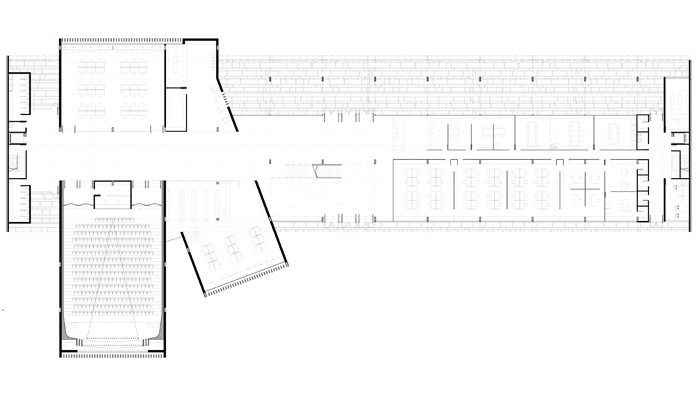
La planta baja de carácter flexible, alberga las funciones públicas y administrativas (biblioteca, auditorio y oficinas), mientras que la segunda planta de carácter estructurado y modular, aloja las aulas y laboratorios, resueltos en una doble crujía.
CCFGM con Carlos Di Napoli, Germán Müller, Manuel Mur, Lucas Henquin y Federico Cairoli.
CCFGM con Carlos Di Napoli, Germán Müller, Manuel Mur, Lucas Henquin y Federico Cairoli.
.
Rawson, Argentina, 2011
1º Premio