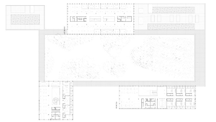
El proyecto parte de la premisa de entender la condición urbana en la que el complejo edilicio se implanta a partir de la necesidad de generar un conjunto de carácter institucional y flexible en el tiempo, integrado a su entorno y que responda al mismo tiempo a la escala de ciudad que un proyecto de estas características representa.
El conjunto se resuelve a través de un patio central, alrededor del cual se desarrolla un anillo aporticado que comunica los distintos programas que conforman el conjunto -ENRESP-ENREJA-REMSA-.
Esta resolución permite proyectar edificios compactos y con posibilidad de crecimiento futuro por un lado, y por el otro, brindar una gran flexibilidad de uso, posibilitando distintos armados, recorridos y usos, diferidos o simultáneos.
CCFGM.
CCFGM con Agustín Gonzales Boris, Julieta Marziano y Genesis Naccas.
CCFGM.
Salta, Argentina, 2020