.
CCFGM con Oscar Fuentes.
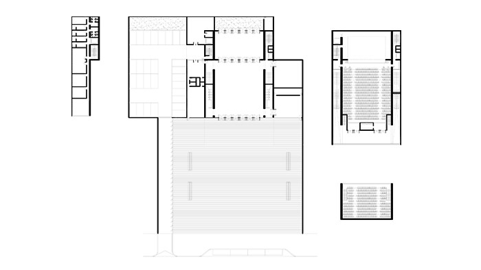
CCFGM con Oscar Fuentes, Irene Martinez Temporal, Ricardo Montiel y Patricio Lanusse.
Provincia de Buenos Aires, Argentina, 2013