.
Creditos
CCFGM asociado Atelier Atlántico.
Equipo
CCFGM asociado Atelier Atlántico.
Fotografía
.
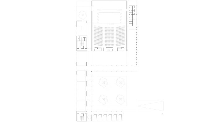
Escuela de Música y Auditorio - UCASAL
Salta, Argentina, 2017
2º Premio