.
Creditos
CCFGM con Carlos Di Napoli.
Equipo
CCFGM con Carlos Di Napoli.
Fotografía
.
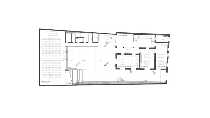
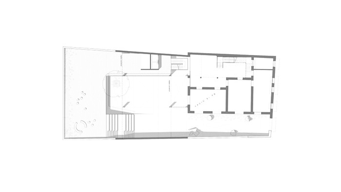
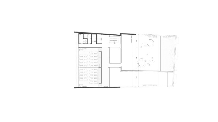
Escuela Provincial de Artes Visuales Juan Mantovani
Santa Fe, Argentina, 2016
1º Premio