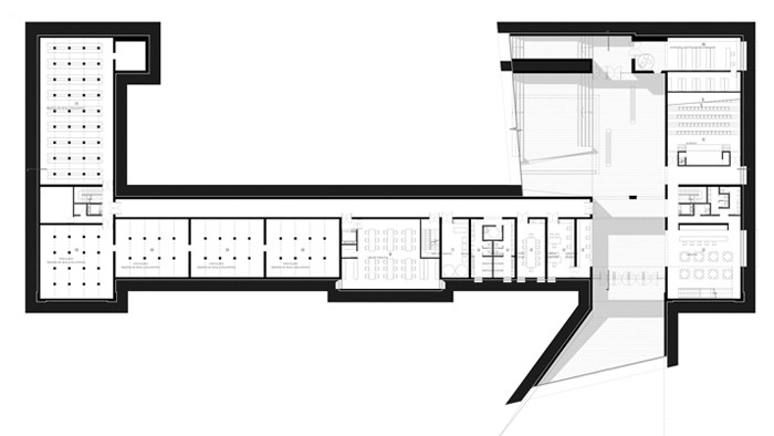
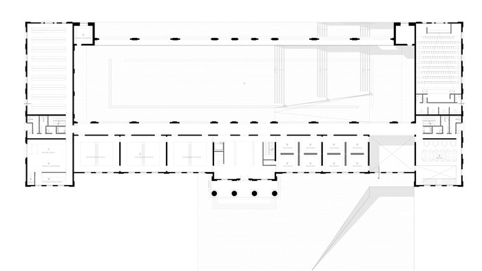
La memoria se construye y se reconstruye. El proyecto para el Museo de la Memoria en la ex Escuela de Mecánica de la Armada es un ejercicio de libertad y democracia, que plantea la reconstrucción de la memoria de la Historia Argentina y de los Derechos Humanos.
La intervención plantea una resignificación del lugar, física y conceptual (escuela-prisión-museo), resignificación que se da a través de la reformulación del ingreso al edificio.
CCFGM con Federico Cairoli, Carlos Di Napoli, Lucas Henquin, Germán Müller y Manuel Mur.
CCFGM con Federico Cairoli, Carlos Di Napoli, Lucas Henquin, Germán Müller y Manuel Mur.
.
Ciudad Autónoma de Buenos Aires, Argentina, 2011
2º Premio